Vrabie Cristina
Vrabie Cristina lucrează cu structura și coerența spațială, concentrându-se pe integrarea atentă în context și pe idei bine conturate. Fostă gimnastă de performanță, aduce în arhitectură disciplina și o estetică tehnică, dar sensibilă și minimalistă.
MUZEUL SPORTULUI - BUCUREȘTI - Vrabie Cristina
Lucrare selectată la Diploma Show 2025
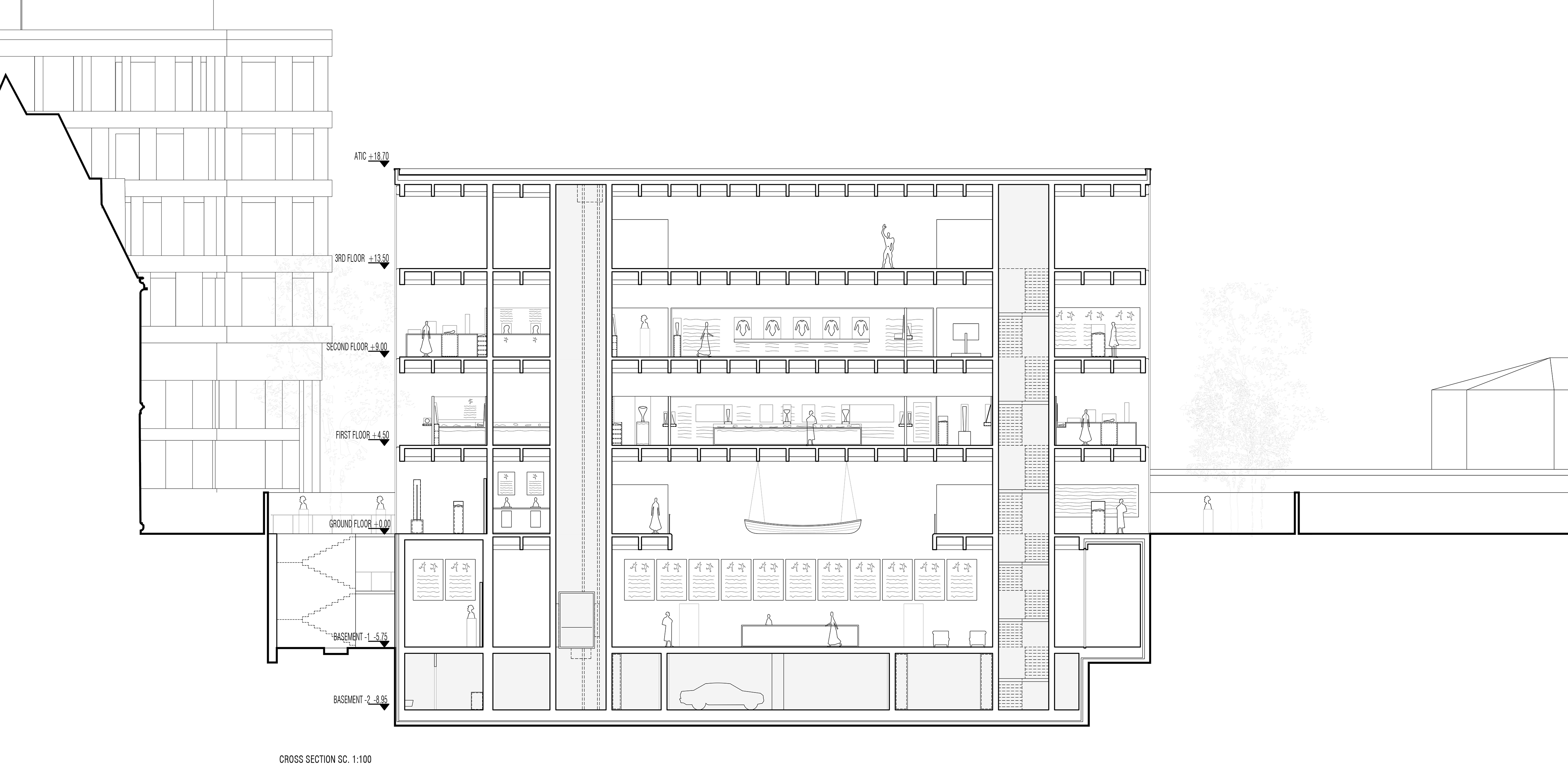
Muzeul Sportului funcționează astăzi într-un spațiu impropriu, cu doar 600 de obiecte expuse dintr-un fond de peste 27.000, fără condiții adecvate de depozitare sau valorizare publică. Necesitatea unui muzeu nou derivă din absența unei instituții reprezentative pentru patrimoniul sportiv, parte esențială a identității naționale. Amplasarea pe Calea Victoriei, axă culturală majoră, oferă legitimitate funcțiunii. Proiectul propune un buzunar urban vegetal care absoarbe fluxul pietonal intens al artereii și creează un moment de respiro. Această alegere determină dezvoltarea muzeului în subteran, iar din nevoia de a susține solul și vegetația de deasupra se naște o structură cu stâlpi tip „ciupercă”. Volumul suprateran, retras față de Casa Florescu-Manu, creează un ecran arhitectural ce pune în valoare monumentul.













MUZEUL SPORTULUI - BUCUREȘTI
București: Universitatea de Arhitectură și Urbanism 'Ion Mincu'
Facultatea de Arhitectură
Proiect integrat
Coordonatori: Conf. Dr. Arh. Duțescu Mihai